∼ SANTAROSA ∼
SANTAROSA
Καλώς ήρθατε σε ένα σύγχρονο συγκρότημα δύο τετραώροφων, ανεξάρτητων πολυκατοικιών επί πυλωτής, στην Πάτρα! Εδώ, η άνεση συναντά την κορυφαία ποιότητα και τη στρατηγική τοποθεσία, προσφέροντας την ιδανική ευκαιρία τόσο για κατοικία όσο και για σίγουρη επένδυση.
Μια ιδανική επιλογή, χάρη στην ασυναγώνιστη τοποθεσία των μόλις 135 μέτρων από το παλιό λιμάνι της Πάτρας, προσφέροντας άμεση πρόσβαση στη θάλασσα και τον παλμό της πόλης. Βρίσκεται σε απόσταση αναπνοής από τον νέο σταθμό υπεραστικών ΚΤΕΛ για εύκολες μετακινήσεις, ενώ δίπλα σας βρίσκεται η πλατεία Δροσοπούλου ( Σανταροζα ), ιδανική για χαλάρωση και αναψυχή.
Απολαύστε μια μαγευτική θέα: από την οδό Σανταρόζα, θαυμάστε την απεραντοσύνη της θάλασσας και το γραφικό λιμάνι, ενώ από την οδό Άστιγγος, συνδυάστε την ομορφιά της θάλασσας και του λιμανιού με την γαλήνια ατμόσφαιρα του καταπράσινου τοπίου της πλατείας.

Τα διαμερίσματα και οι γκαρσονιέρες διαθέτουν υψηλές προδιαγραφές και ποιότητα. Με ενεργειακή κλάση Α, εξασφαλίζουν χαμηλό λειτουργικό κόστος και περιβαλλοντική συνείδηση. Η άριστη ποιότητα κατασκευής εγγυάται αντοχή, αισθητική και διαχρονική αξία, ενώ ο σχεδιασμός τους είναι σύγχρονος και λειτουργικός. Ένα ακόμα πρόσθετο πλεονέκτημα είναι η πυλωτή που διαθέτει άνετες θέσεις στάθμευσης, προσθέτοντας ευκολία στην καθημερινότητα. Οι ευέλικτες επιλογές διαμερισμάτων και γκαρσονιερών είναι κατάλληλες για κάθε ανάγκη.

Τα ακίνητα είναι ιδανικά για όλους:
- Επενδυτές που αναζητούν υψηλή απόδοση, σταθερότητα και αξία στο χρόνο σε μια αναπτυσσόμενη περιοχή.
- Φοιτητές που θέλουν ένα μοντέρνο, πρακτικό και λειτουργικό σπίτι κοντά σε όλα τα κεντρικά σημεία και τις σχολές.
- Οικογένειες που επιθυμούν μια σύγχρονη, ποιοτική και άνετη στέγη στην πόλη, με πρόσβαση σε χώρους πρασίνου.
ΤΟΠΟΘΕΣΙΑ
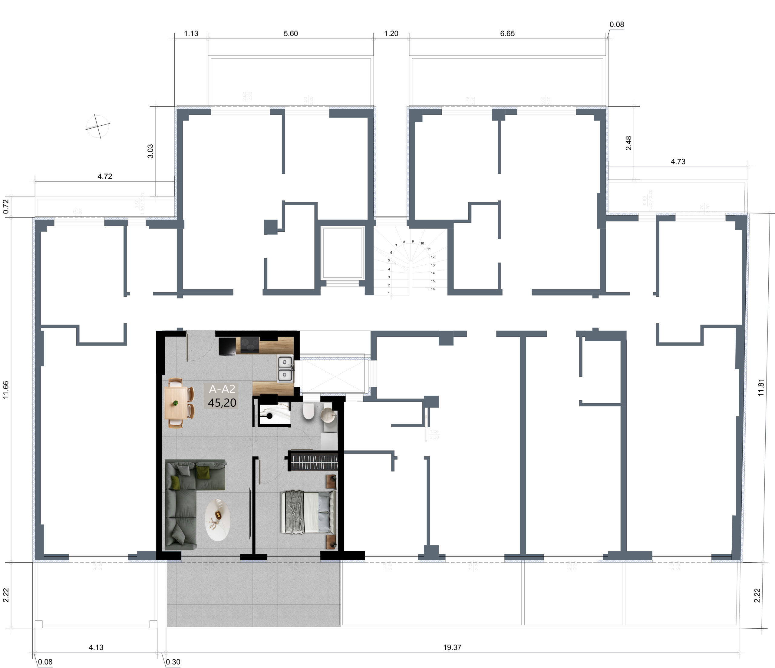
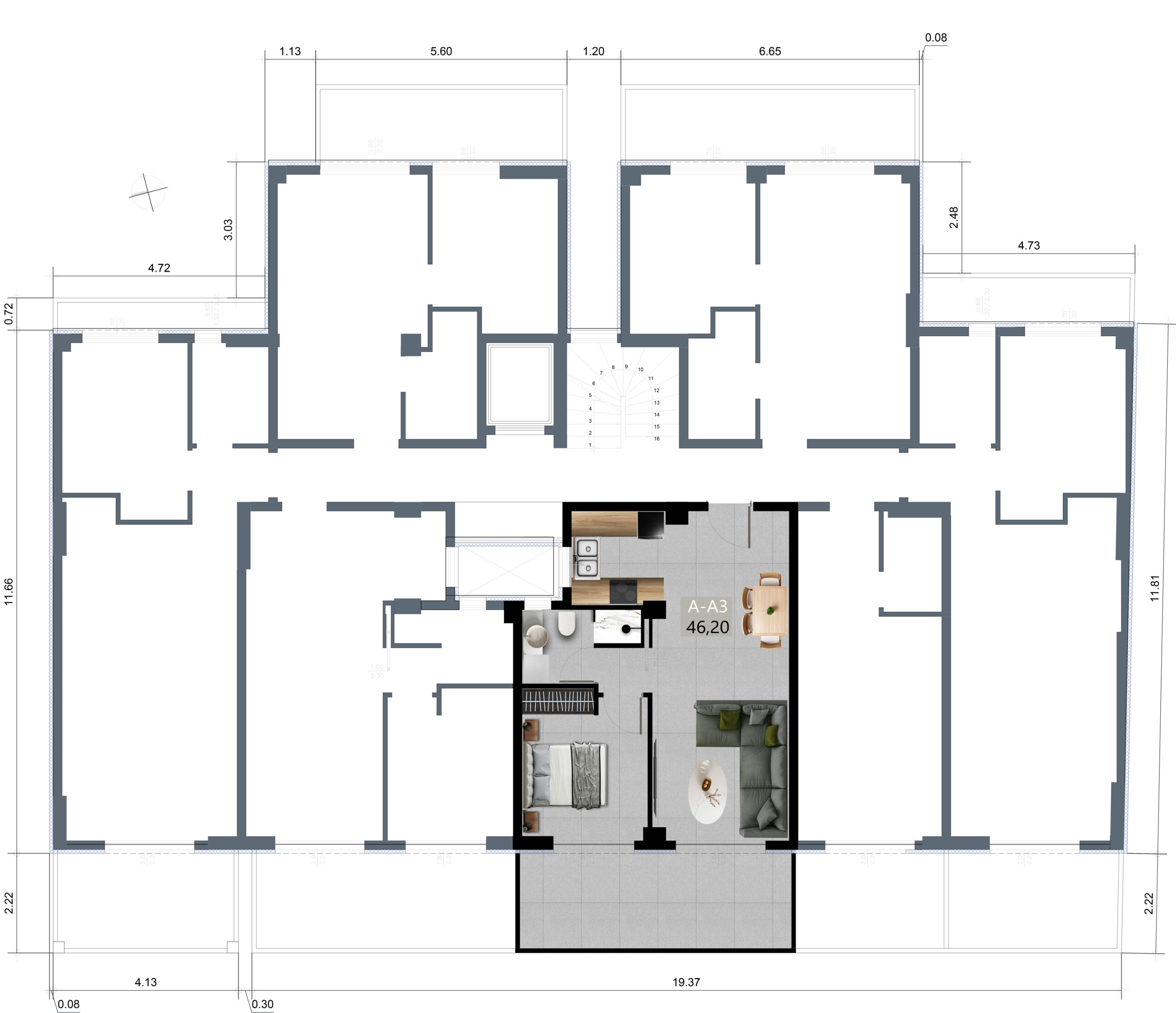
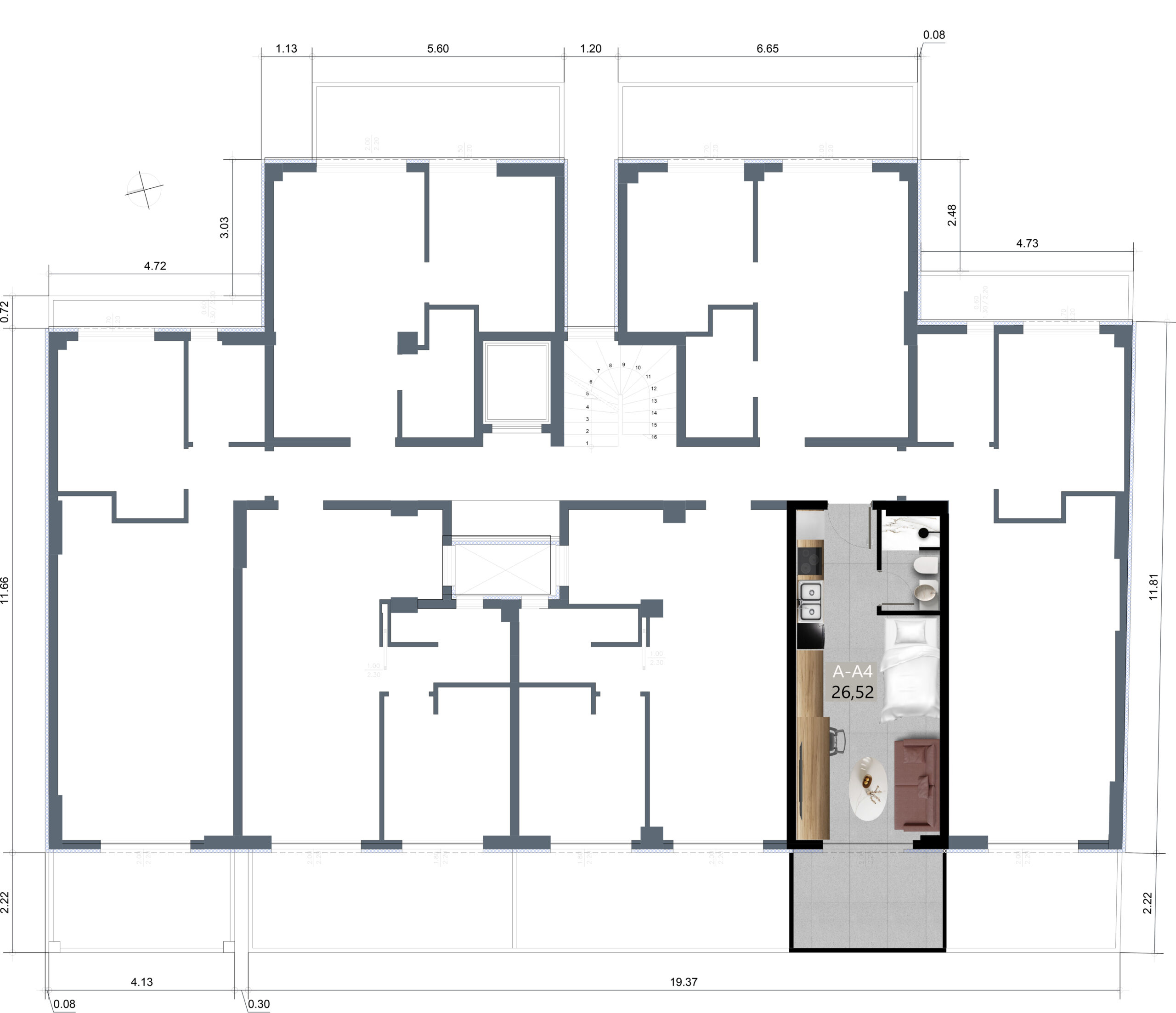
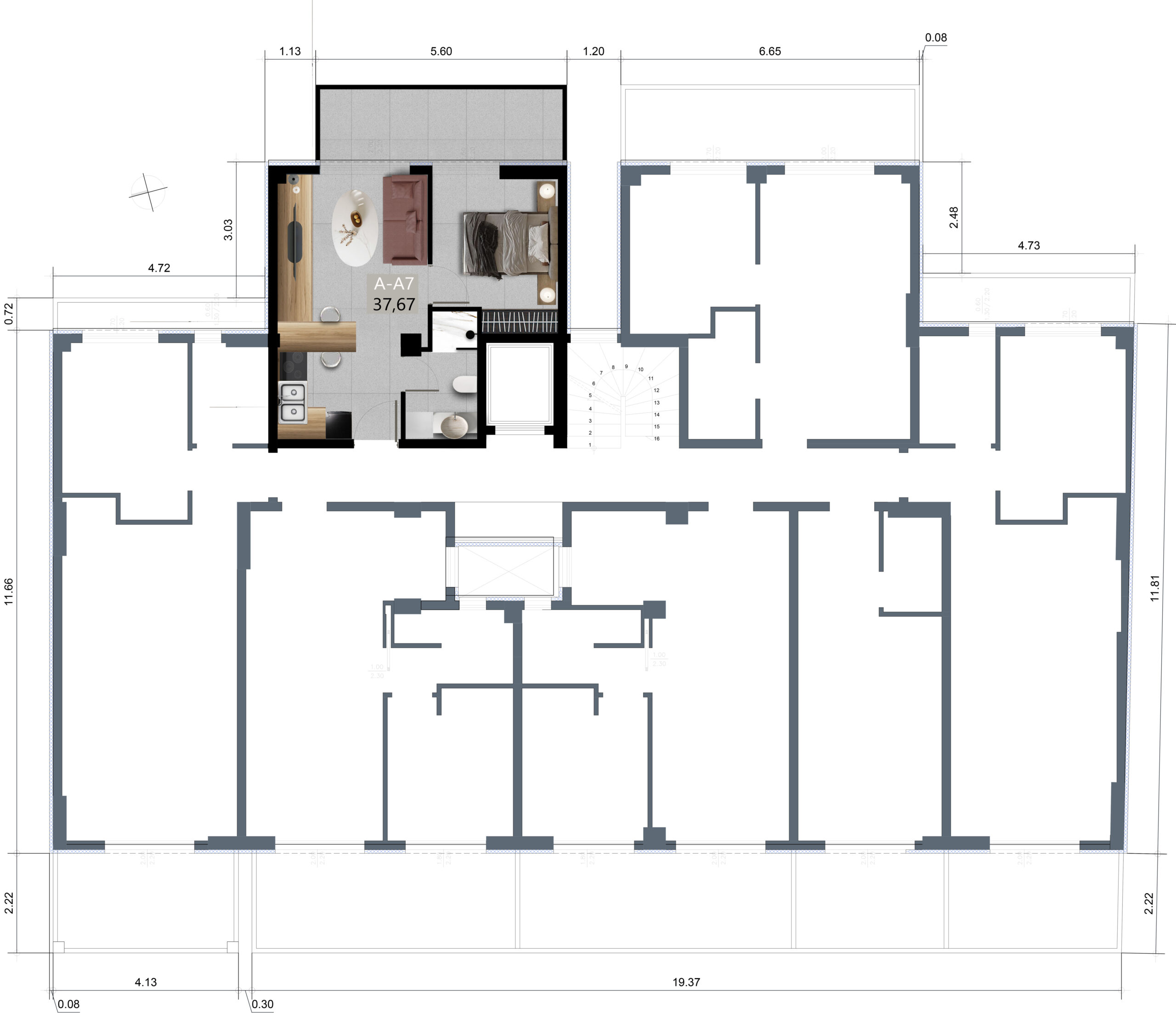
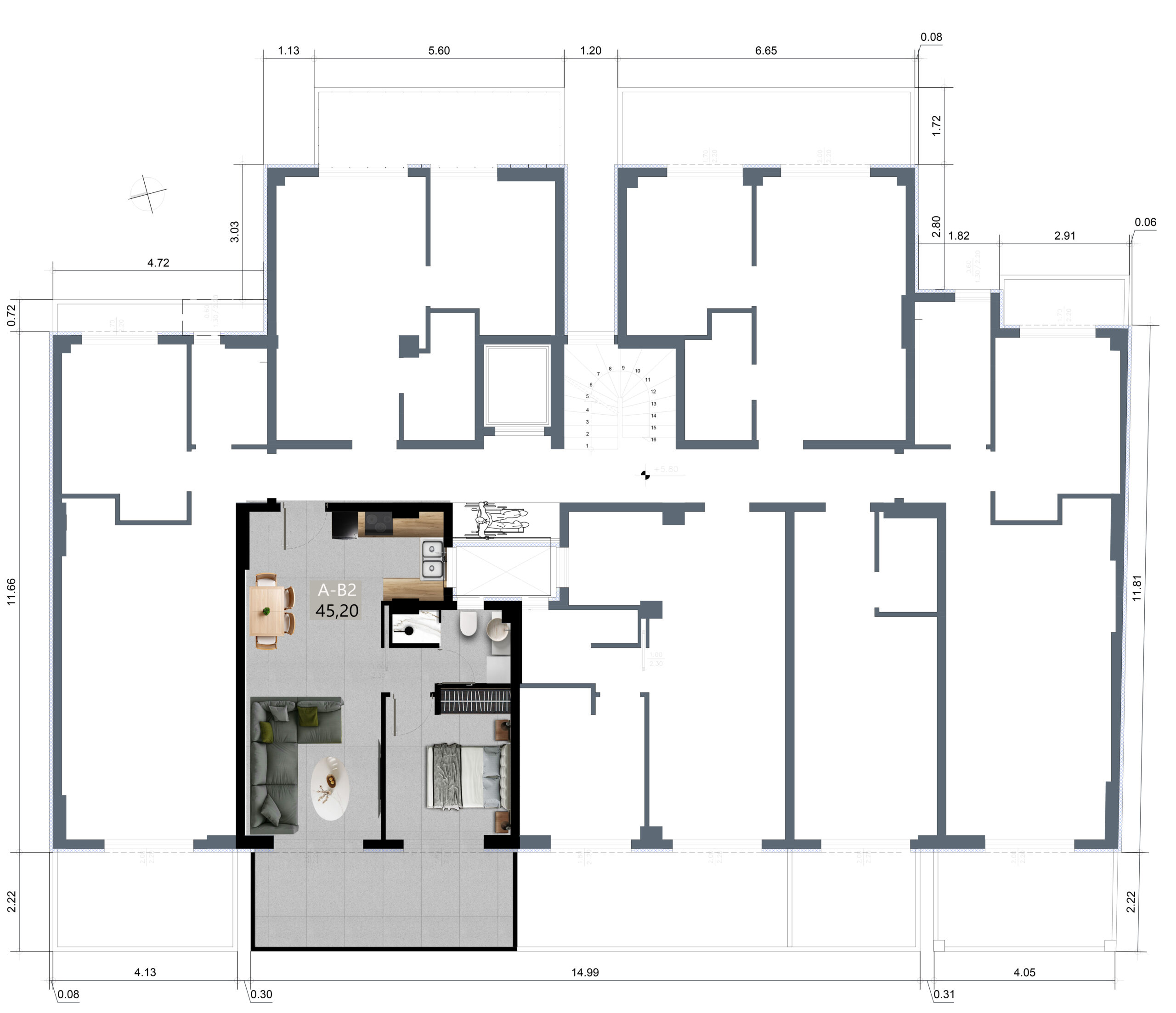
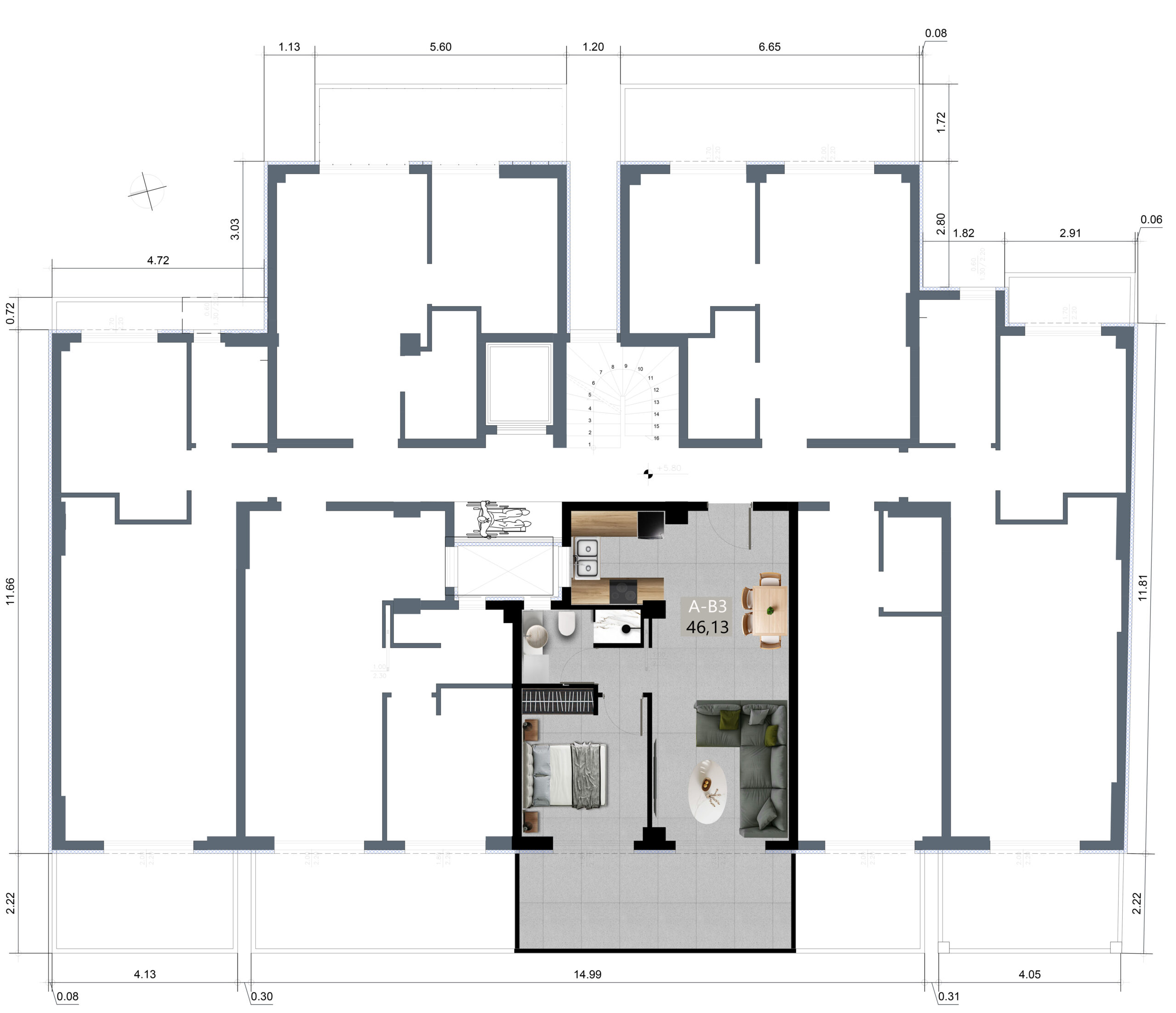
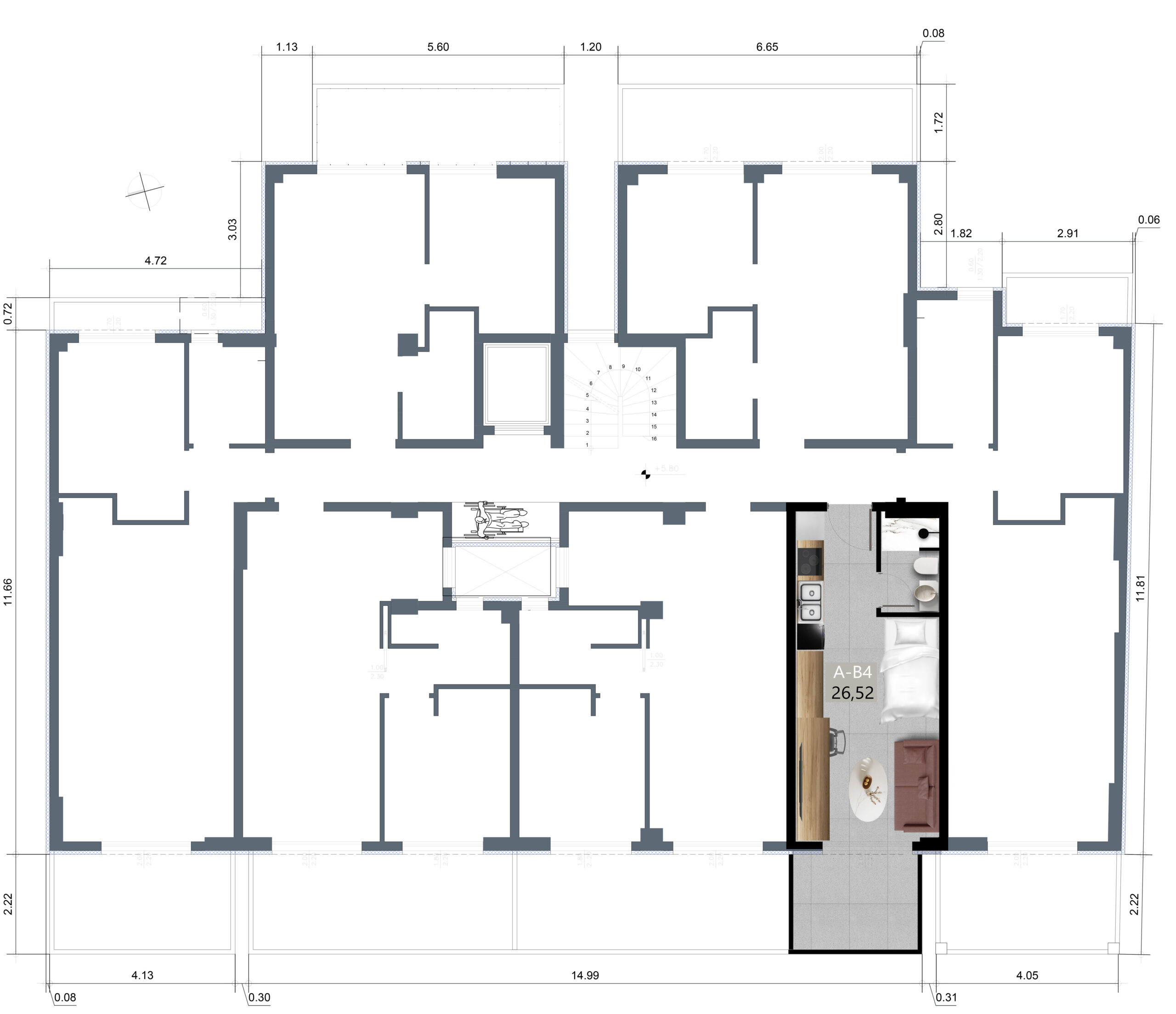
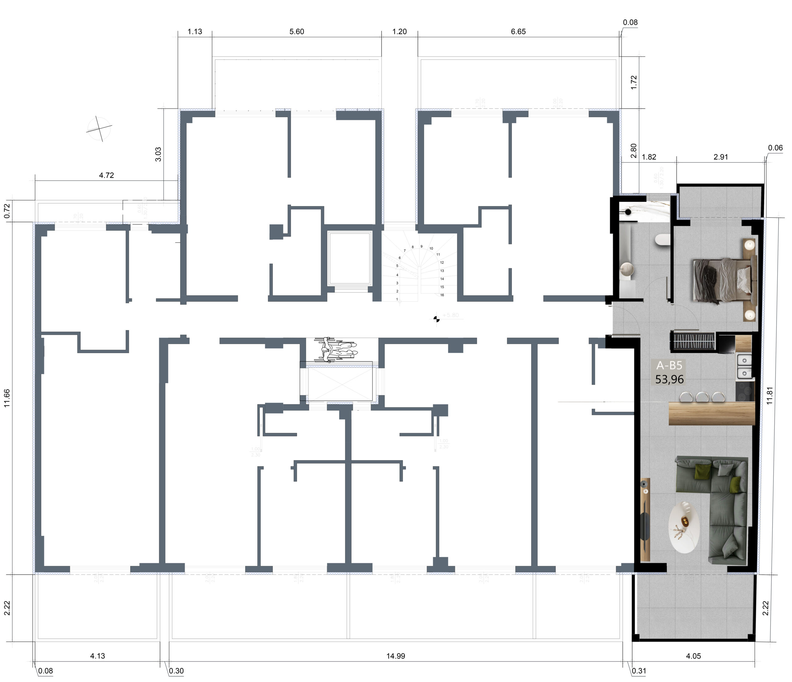
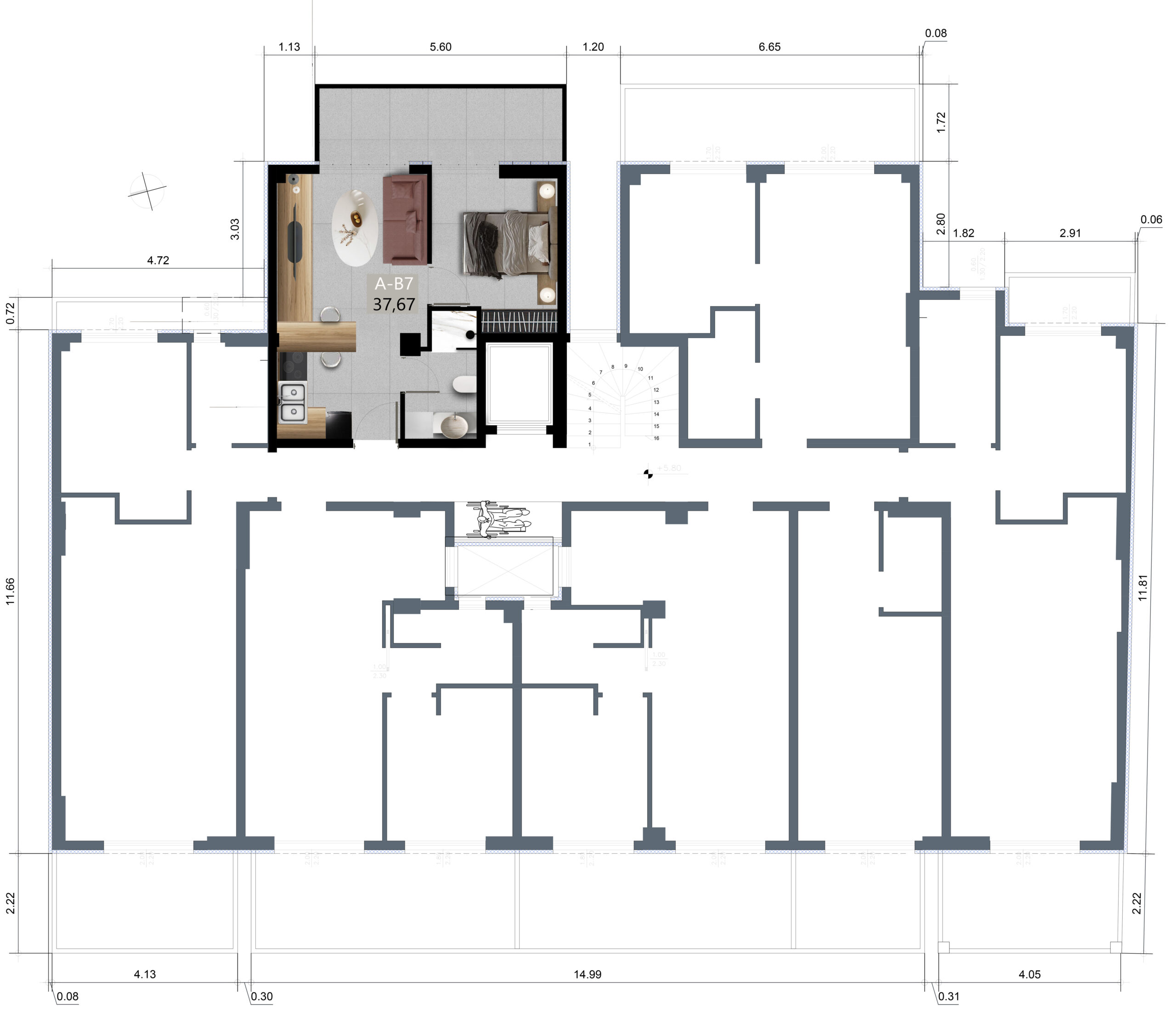
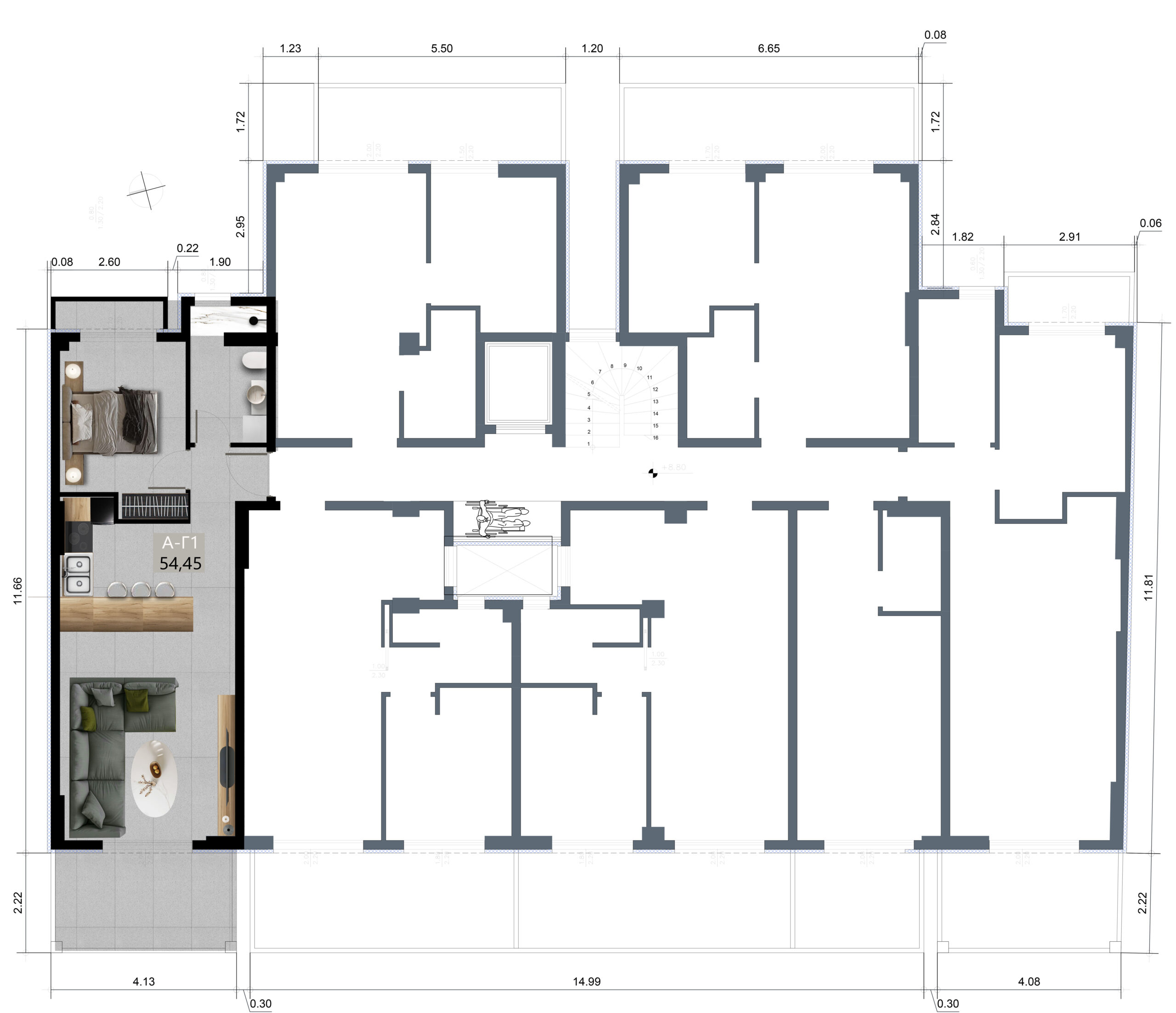
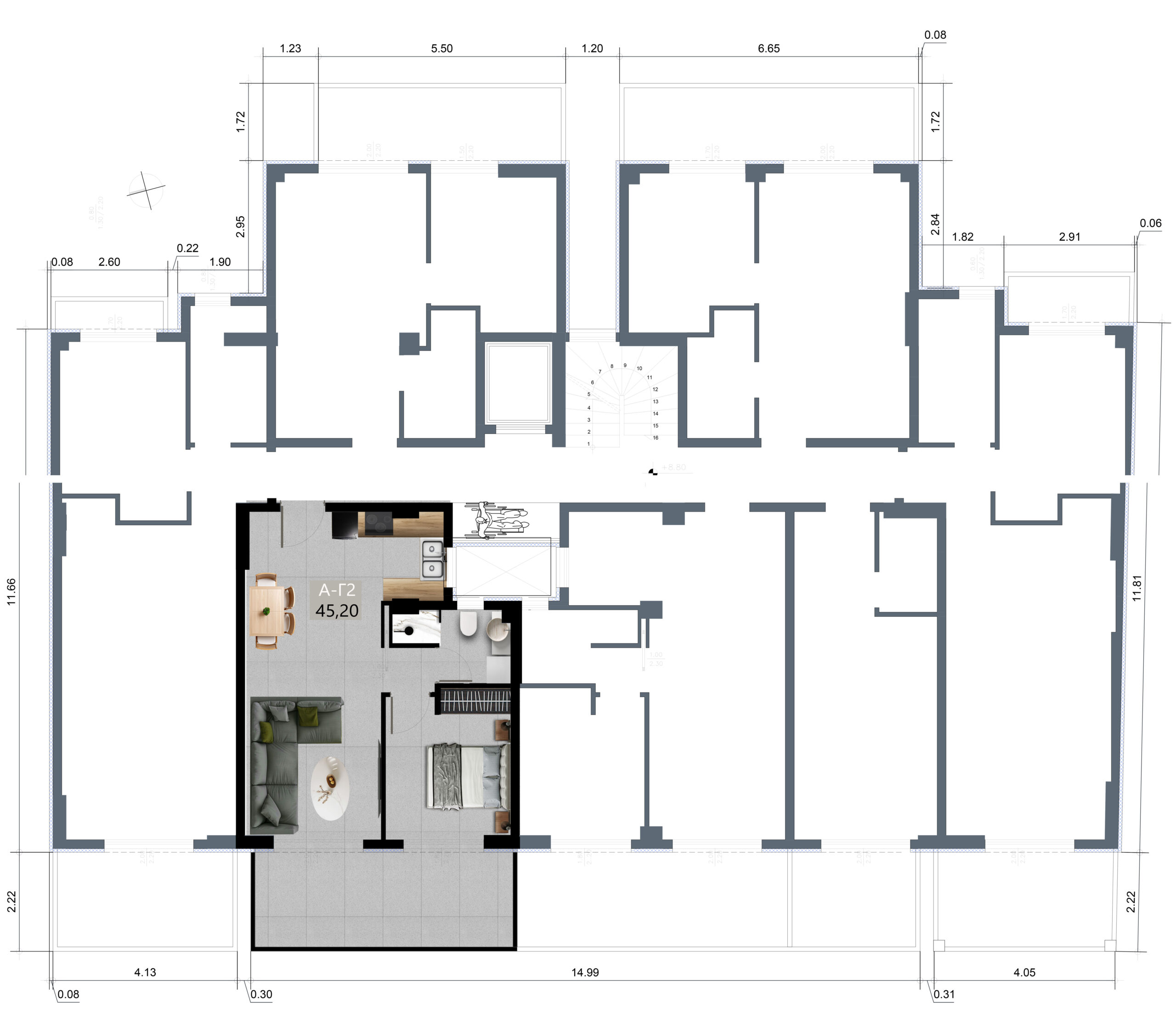
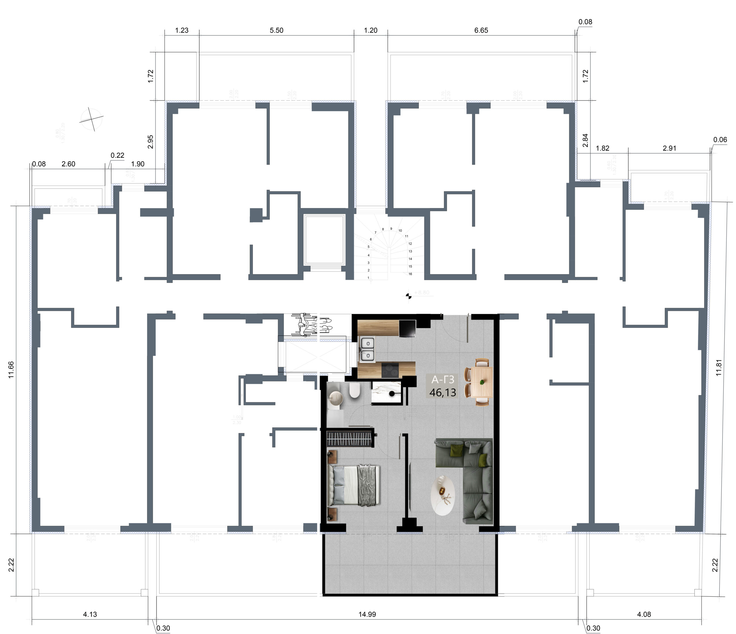
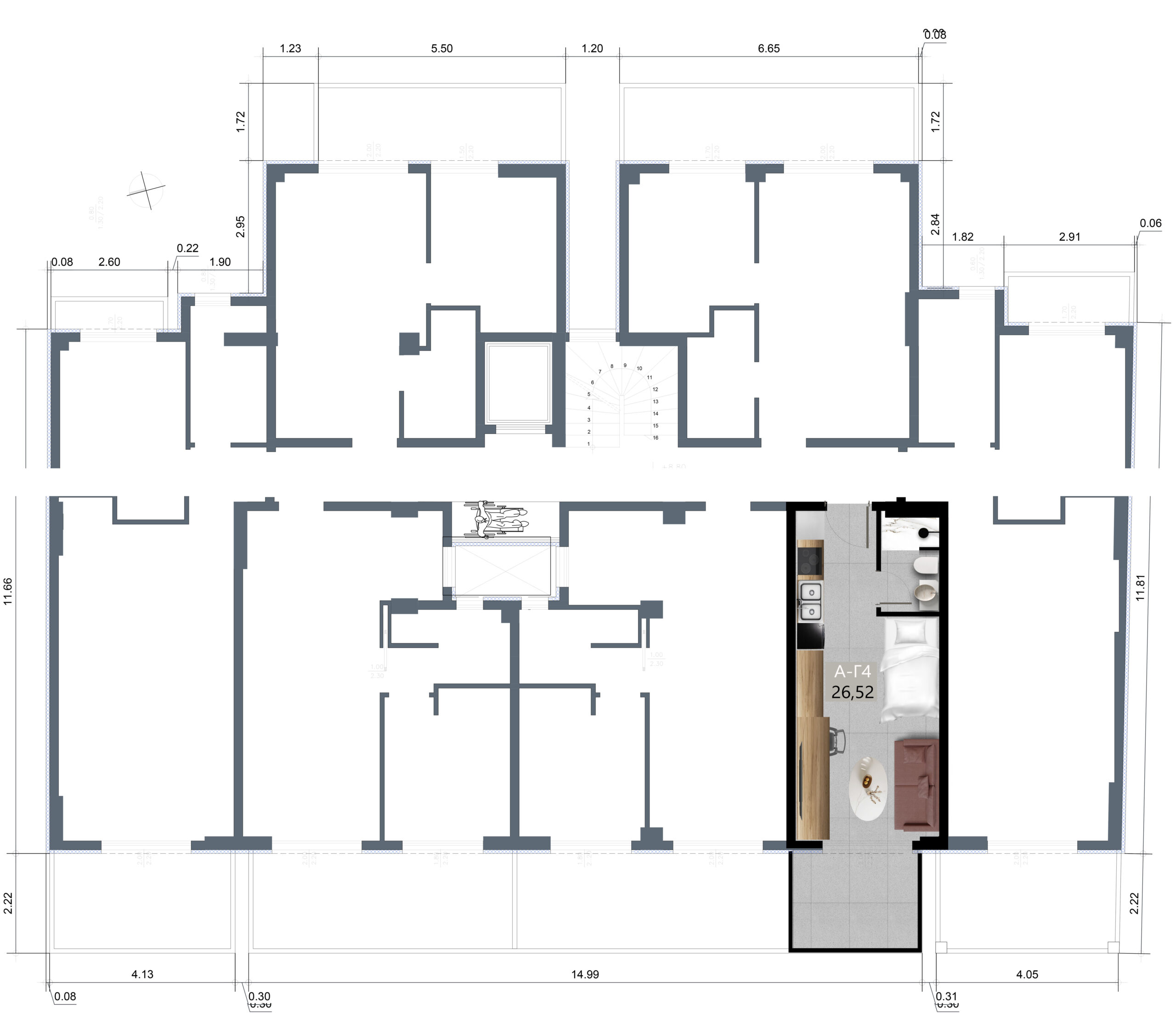
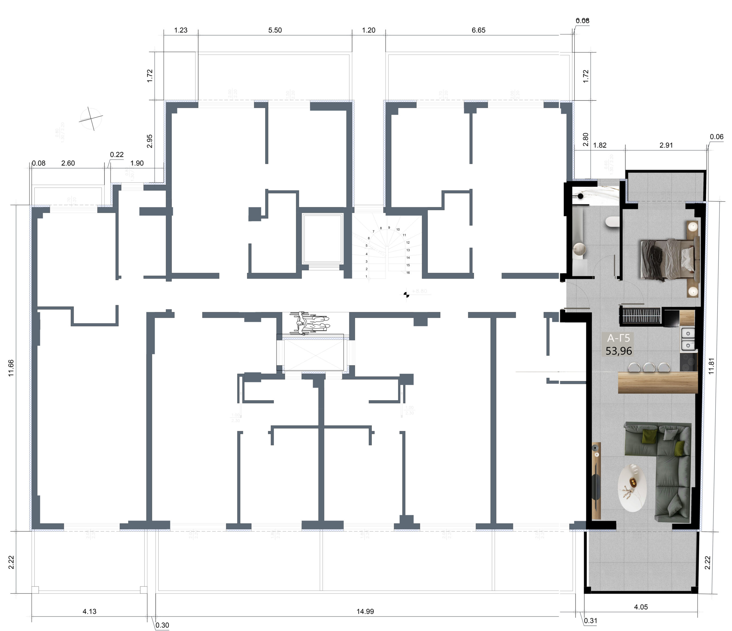
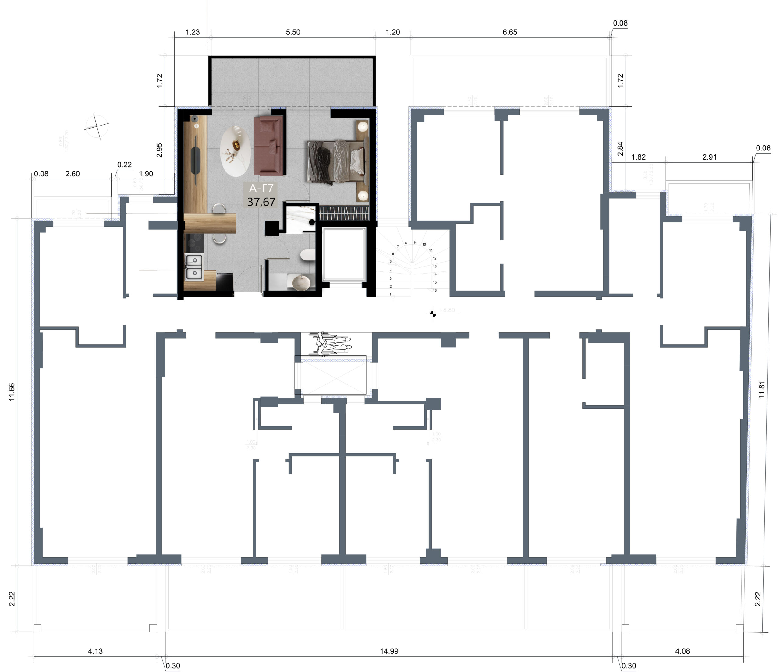
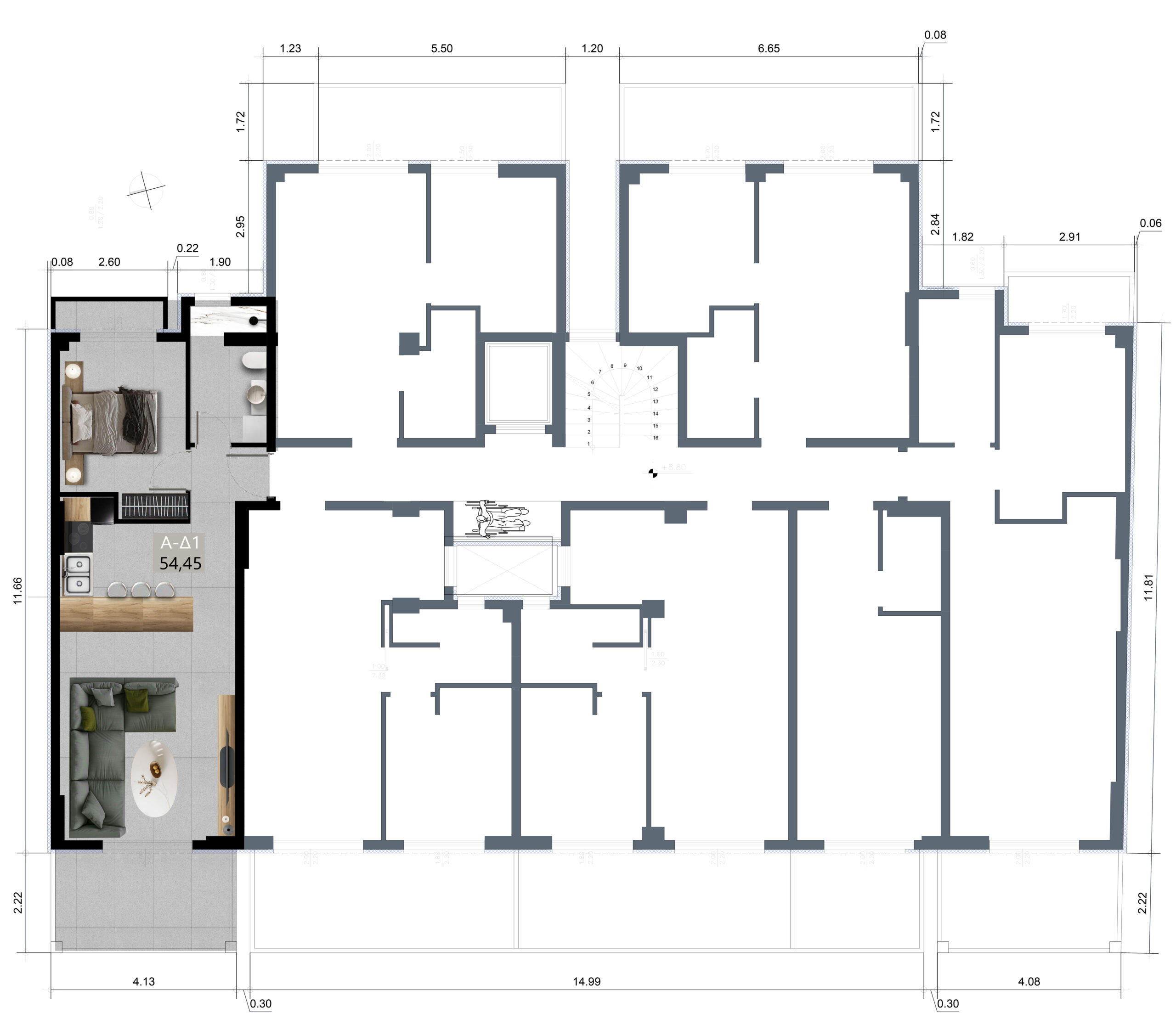
ΚΑΤΟΨΕΙΣ ΚΤΙΡΙΩΝ
ΚΤΗΡΙΟ Α
ΟΡΟΦΟΣ Α
ΟΡΟΦΟΣ Β
ΟΡΟΦΟΣ Γ
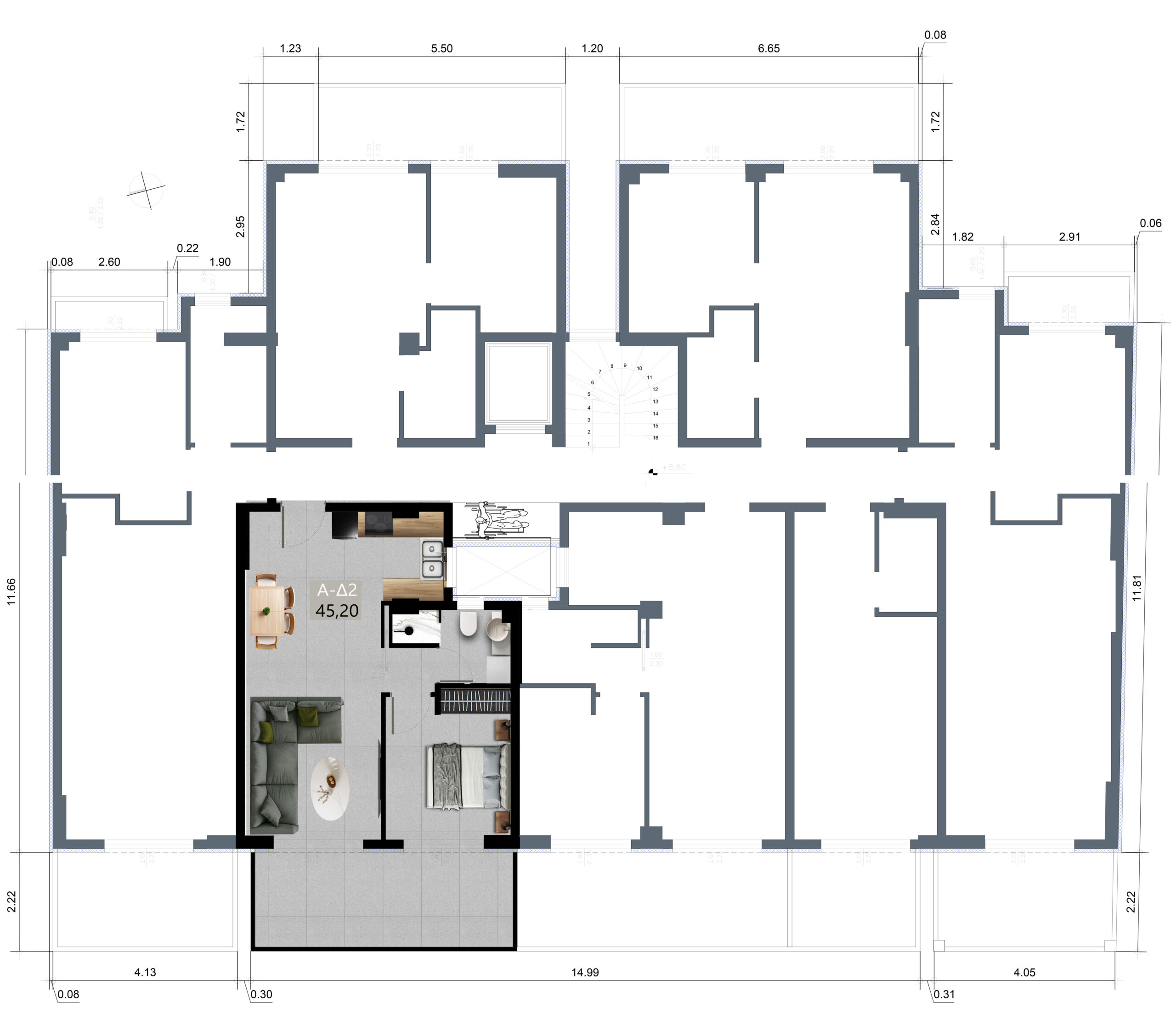
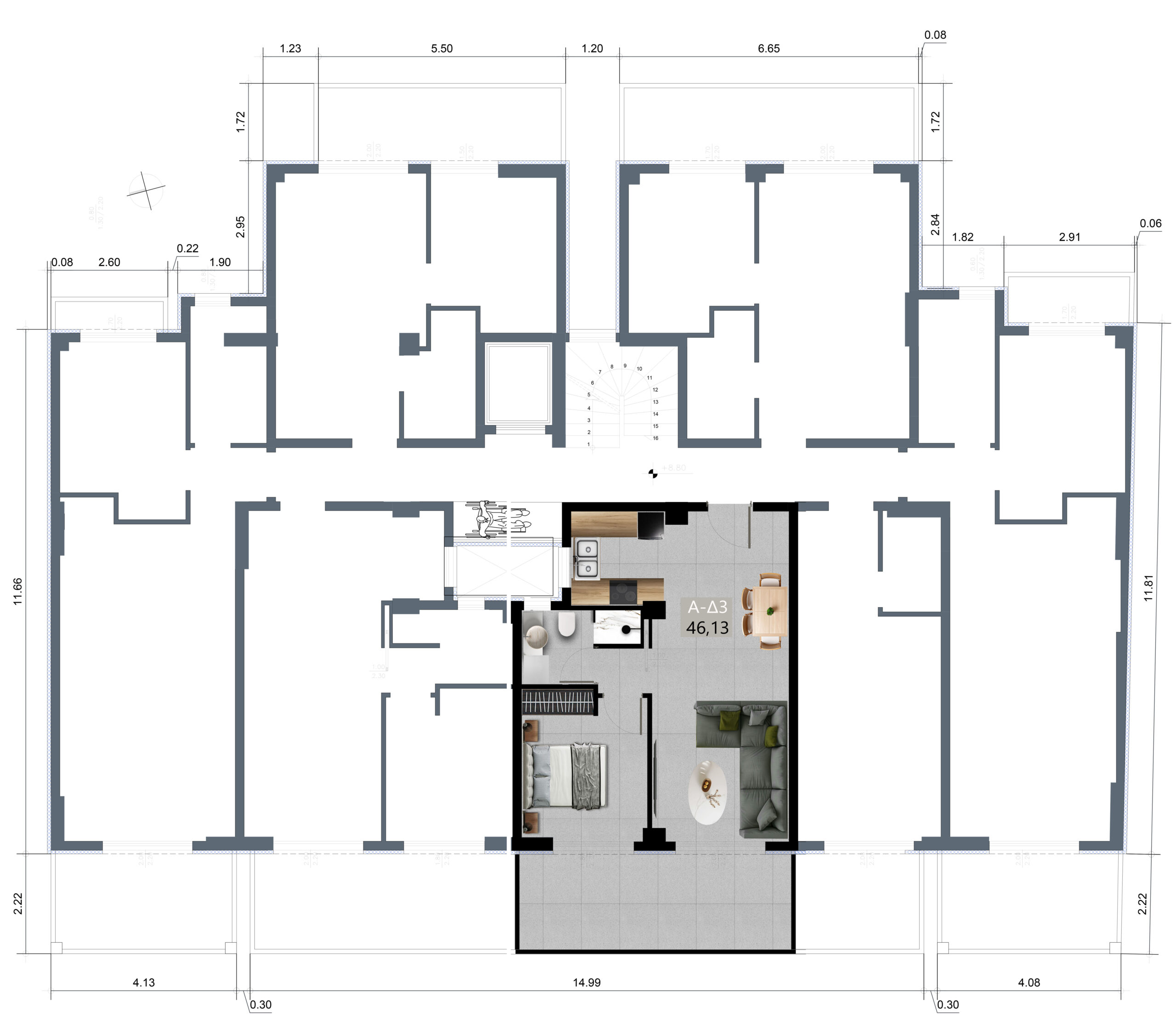
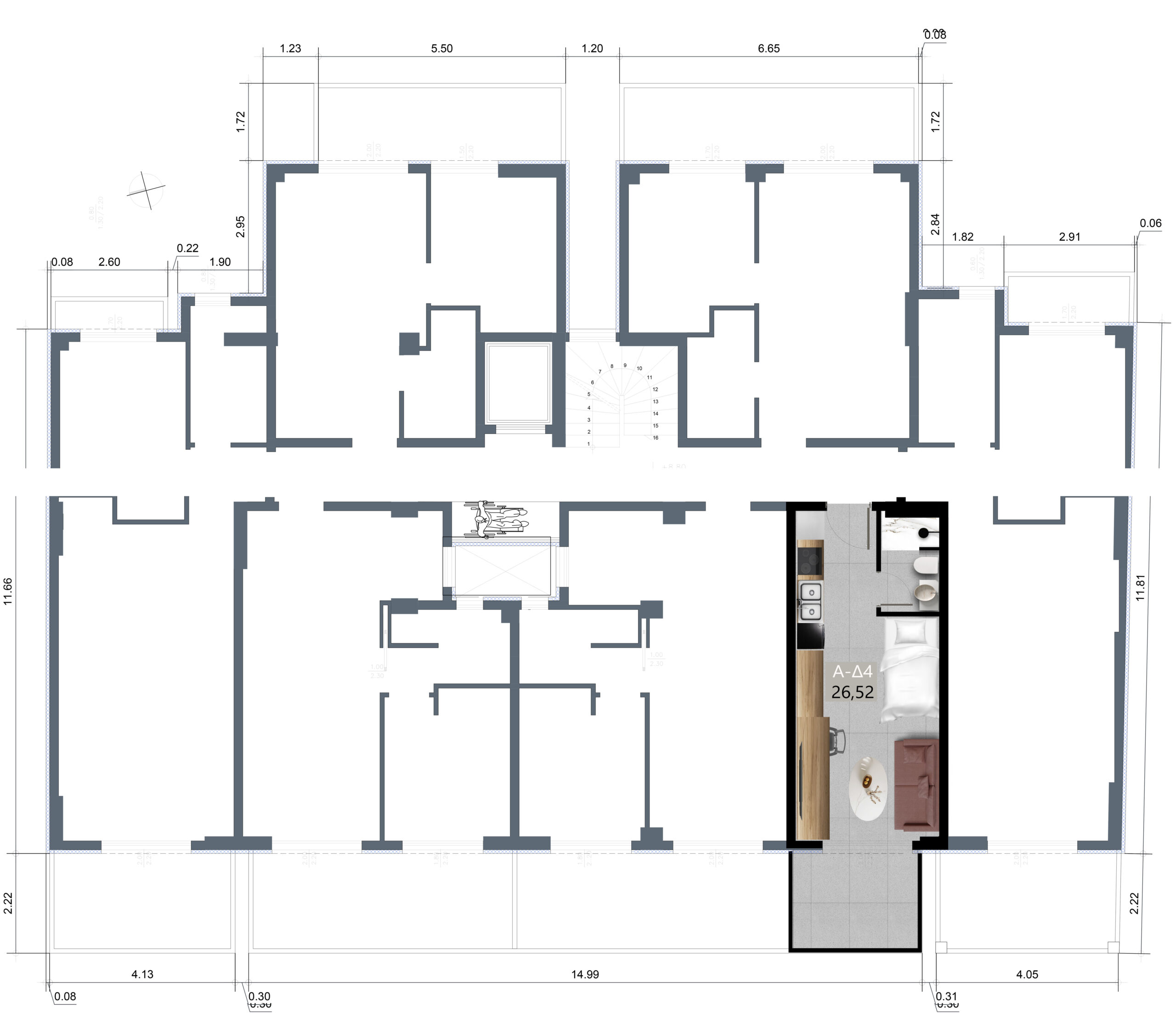
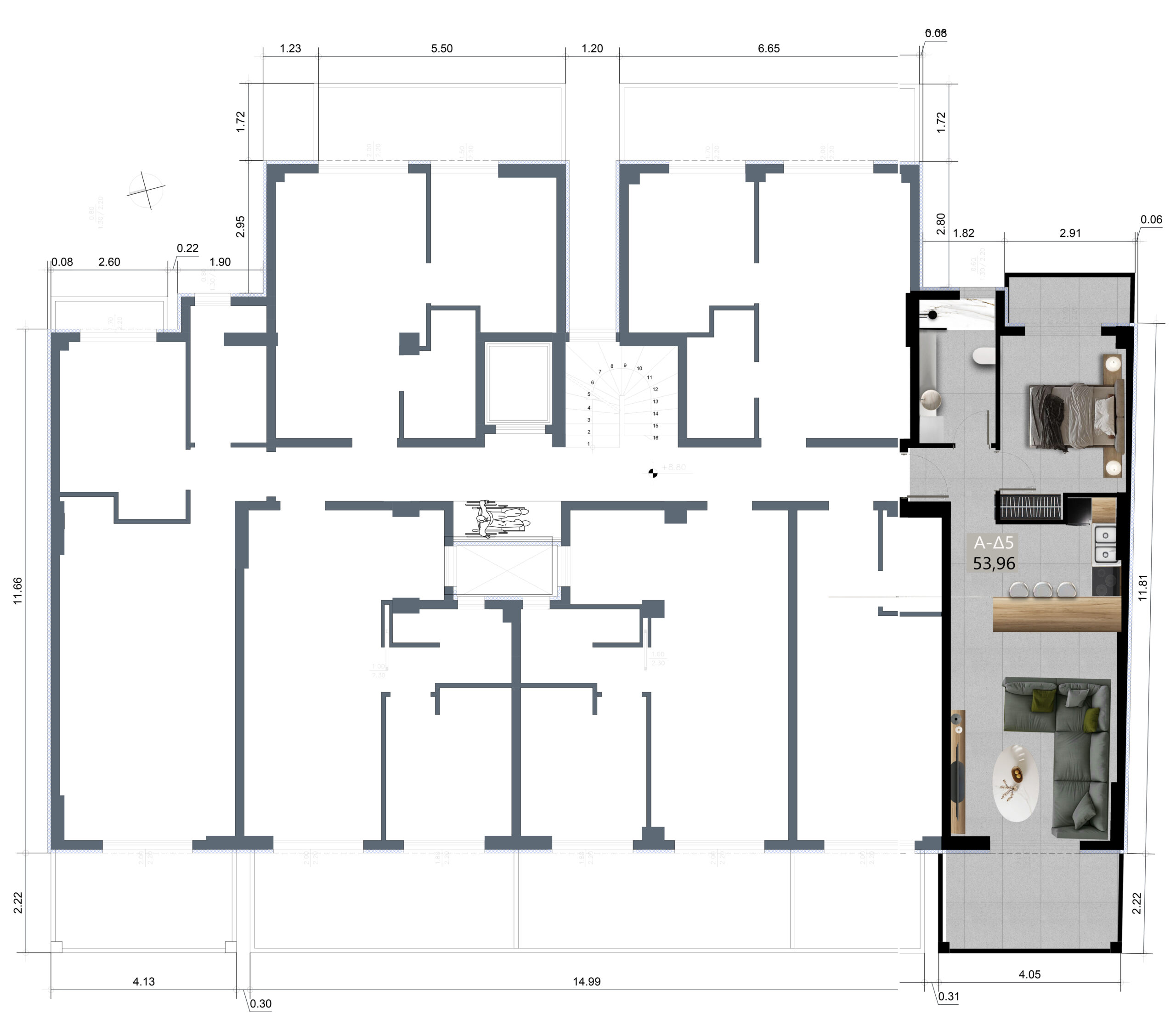
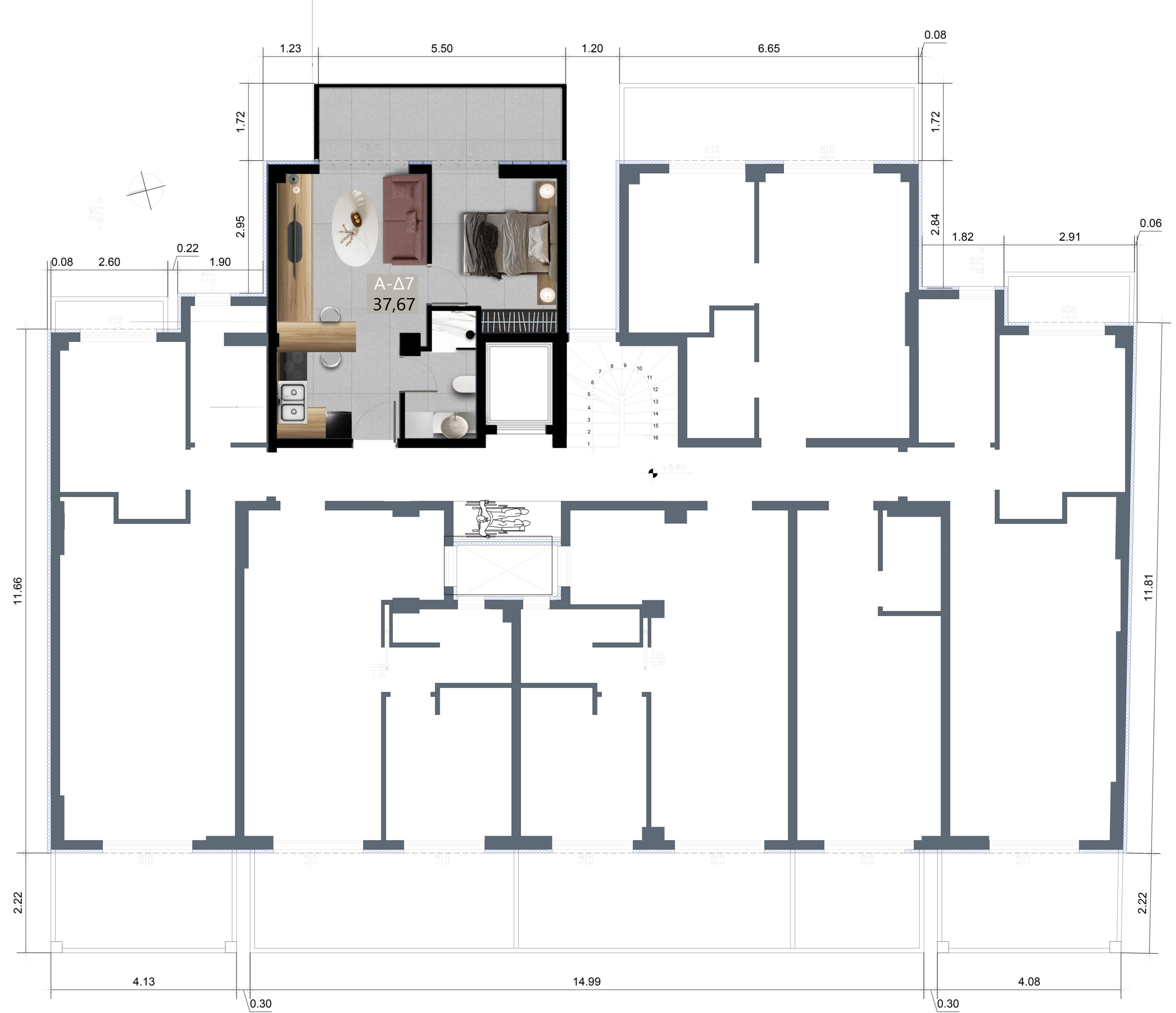
ΟΡΟΦΟΣ Δ
A1
A2
A3
A4
A5
A6
A7







B1
B2
B3
B4
B5
B6
B7







Γ1
Γ2
Γ3
Γ4
Γ5
Γ6
Γ7







Δ1
Δ2
Δ3
Δ4
Δ5
Δ6
Δ7







ΚΤΗΡΙΟ Β
A1
A2
B1
B2
Γ1
Γ2
Δ1
Δ2






























